






🏡 Casă cu amprentă mică, 2 camere, hol locuibil – curte comună civilizată
Vă propunem spre vanzare o casă cochetă, cu amprentă mică, ideală pentru cei care caută liniște și confort într-o zonă accesibilă, aproape de centrul orașului.
✨ Detalii proprietate:
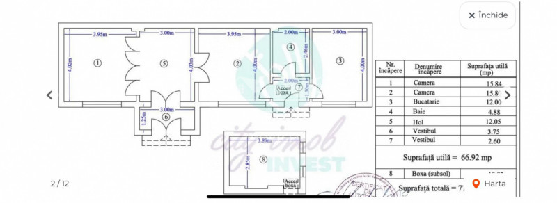
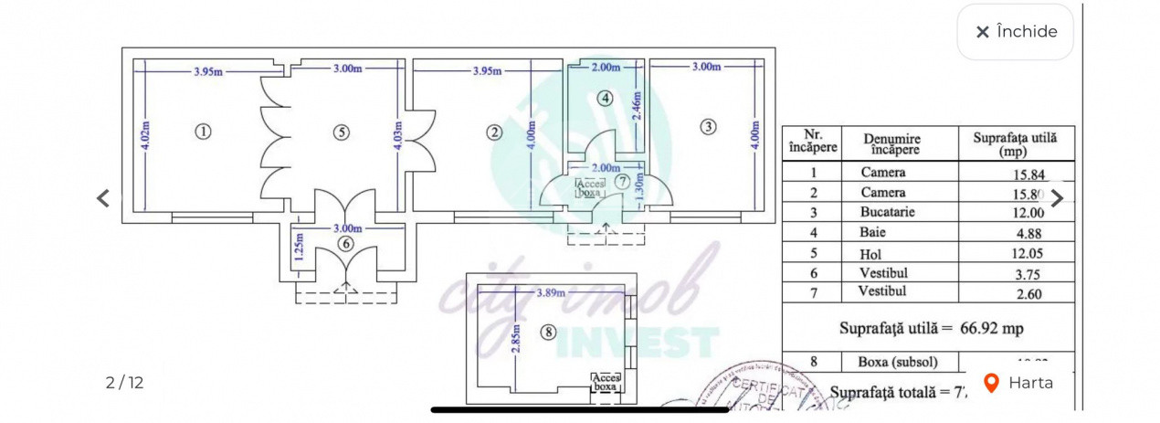
Compartimentare practică: 2 camere, hol locuibil, marchiză, baie, bucătărie;
Pivniță utilă pentru depozitare;
Mobilată clasic, funcțională și primitoare;
Toate utilitățile racordate (apă, gaz, curent, canalizare).
🌿 Curte și vecinătate:
Casa este amplasată într-o curte comună, betonată, curată și civilizată, oferind un mediu liniștit și sigur.
📍 Localizare:
Zona este una practică, cu acces rapid către centrul orașului și către mijloace de transport, magazine, școli și alte puncte de interes.
✅ Avantaje:
Casă independentă, cu intimitate și confort;
Curte comună îngrijită și vecinătate civilizată;
Acces facil către zonele centrale;
Locuință gata de mutare imediată.
🔑 O alegere potrivită pentru o persoană singură sau un cuplu care își dorește o locuință intimă, bine poziționată și ușor de întreținut.
📞 Vă invităm la vizionare pentru a descoperi personal toate avantajele acestei case!