


















🏛 Imobil interbelic renovat – ideal investiție | 178 mp | singur în curte
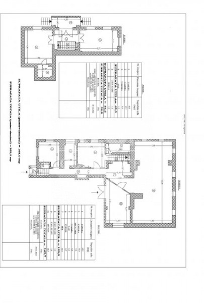
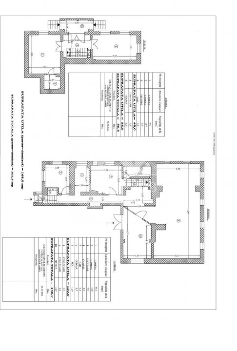
Echipa GOLD MCB Imobiliare vă propune spre vânzare un imobil cu farmec interbelic, complet renovat, situat într-una dintre cele mai apreciate zone centrale ale Capitalei. Proprietatea este compusă din demisol + parter, având o suprafață totală de 178 mp, și beneficiază de curte proprie, fiind singur în curte.
✨ Caracteristici principale:
imobil renovat integral, cu finisaje de calitate;
instalații electrice și sanitare noi;
centrală termică proprie;
contorizare separată (apă, canalizare, electricitate);
structură solidă, compartimentare practică;
curte proprie – un avantaj major pentru orice tip de activitate.
🩺 În prezent:
Imobilul este închiriat unui cabinet medical, ceea ce asigură venit imediat și constant pentru viitorul proprietar.
Totuși, datorită compartimentării și poziției excelente, spațiul este potrivit pentru o gamă variată de activități:
birouri,
firmă cu activitate administrativă,
studio, atelier,
clinici, cabinete,
rezidențial.
📍 Localizare premium:
În imediata apropiere se regăsesc:
Liceul Mihai Eminescu,
Parchetul Militar,
Piața Cosbuc,
Palatul Parlamentului,
stația de metrou Piața Unirii,
numeroase centre comerciale și instituții publice.
O zonă centrală, activă, cu acces facil către toate punctele importante ale orașului.
🔑 Concluzie:
O proprietate ideală pentru investitori, cu potențial excelent de valorificare, atât prin randament, cât și prin poziție.
Vă invităm să îl vedeți!
Contactați-ne pentru detalii și programarea unei vizionări.